Дом из клееного бруса 104м2
Описание:
Компактный и уютный — так можно оценить этот проект. Внешне деревянный дом не похож на типичные деревянные строения и в этом его особая привлекательность.
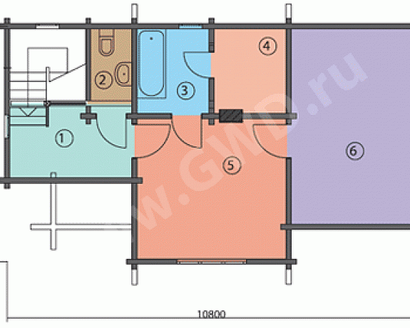
Первый этаж

Общая площадь 1-го этажа — 54.83 м.кв.
| № | Название | Площадь, м2 |
|---|---|---|
| 1 | Крыльцо | 2,74 |
| 2 | Холл | 9,51 |
| 3 | Санузел | 4,35 |
| 4 | Кухня-столовая | 21,06 |
| 5 | Спальня | 17,13 |
Второй этаж

Общая площадь 2-го этажа — 47.09 м.кв.
| № | Название | Площадь, м2 |
|---|---|---|
| 1 | Холл | 5,19 |
| 2 | Санузел | 2,37 |
| 3 | Ванная | 4,13 |
| 4 | Сауна | 4,08 |
| 5 | Гостиная | 14,13 |
| 6 | Спальня | 17,13 |
Отзывы про Дом из клееного бруса 104м2: