Дома из клееного бруса 200м2
Описание:
Фундамент, стеновой комплект, огнебиозащита, кровля, окна — все включено!
Первый этаж

Общая площадь 1-го этажа — 107.47 м.кв.
| № | Название | Площадь, м2 |
|---|---|---|
| 1 | Крыльцо | 5,38 |
| 2 | Прихожая | 3,64 |
| 3 | Холл | 20,74 |
| 4 | Бойлерная | 9,57 |
| 5 | Санузел | 6,50 |
| 6 | Крыльцо | 1,71 |
| 7 | Гардеробная | 6,20 |
| 8 | Кухня | 9,57 |
| 9 | Зал | 25,02 |
| 10 | Терраса | 4,46 |
| 11 | Спальня | 14,68 |
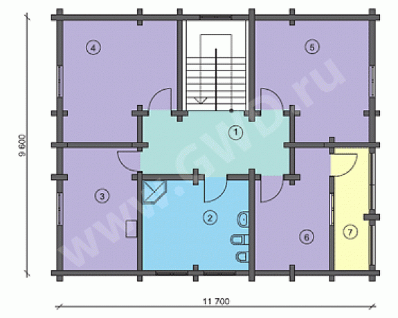
Второй этаж

Общая площадь 2-го этажа — 92.18 м.кв.
| № | Название | Площадь, м2 |
|---|---|---|
| 1 | Холл | 12,16 |
| 2 | Ванная | 13,66 |
| 3 | Спальня | 12,94 |
| 4 | Спальня | 18,05 |
| 5 | Спальня | 18,05 |
| 6 | Спальня | 11,14 |
| 7 | Балкон | 6,03 |
Отзывы про Дома из клееного бруса 200м2: